RACHEL MALCHOW ARCHITECT INC.
Home
Project Gallery
covid19 precautions
About Me
Services
Contact Me
Home
Project Gallery
covid19 precautions
About Me
Services
Contact Me
RACHEL MALCHOW ARCHITECT INC.
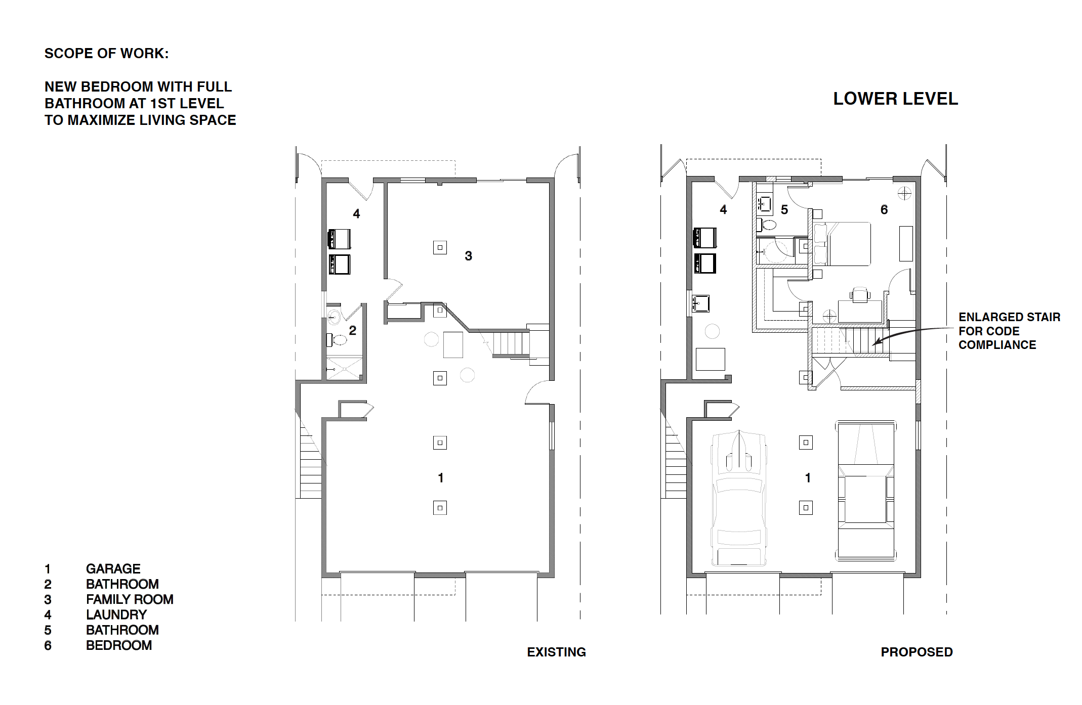
Ground Floor Bed & Bath