RACHEL MALCHOW ARCHITECT INC.
Home
Project Gallery
covid19 precautions
About Me
Services
Contact Me
Home
Project Gallery
covid19 precautions
About Me
Services
Contact Me
RACHEL MALCHOW ARCHITECT INC.
PROJECT
Gallery
COMPLETED PROJECTS
Pacific Heights Roof Deck
San Francisco Infill Remodel
Jackson Roof Deck & Penthouse
Bay Area Peninsula ADU
Ray Home Remodel
Mission Restaurant
Cannabis Dispensary
Corporate Café
School Toilet Remodel
Children Center
SF Preschool Remodel
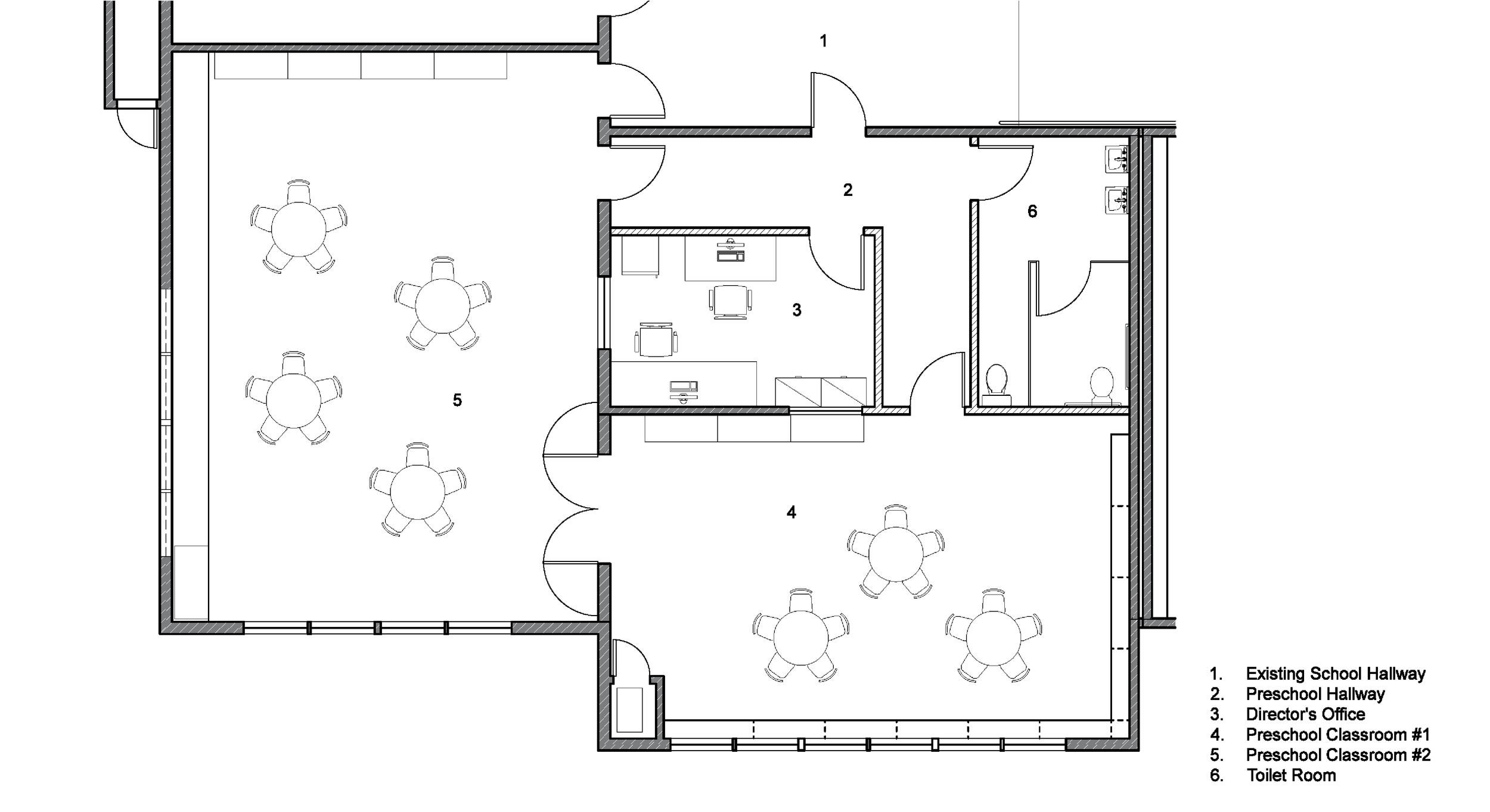
Millbrae Preschool Remodel
San Francisco Legalization
Rear Yard Deck
Ground Floor Bed & Bath
Condo Bathroom Remodel
under construction - under plan review
on the boards
NOPA Attic Remodel
Brewery